Bichlhofweg
Städtebauliches Konzept
Die fertige Anlage im Juli 2011
Streitfeldstrasse
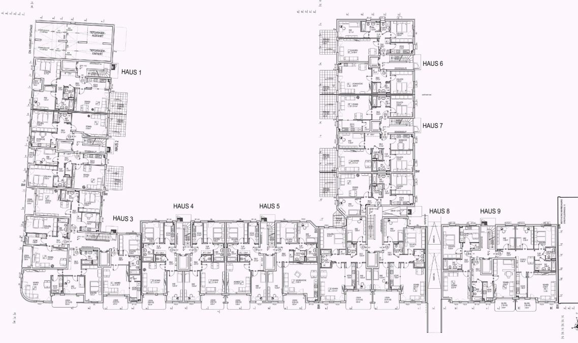
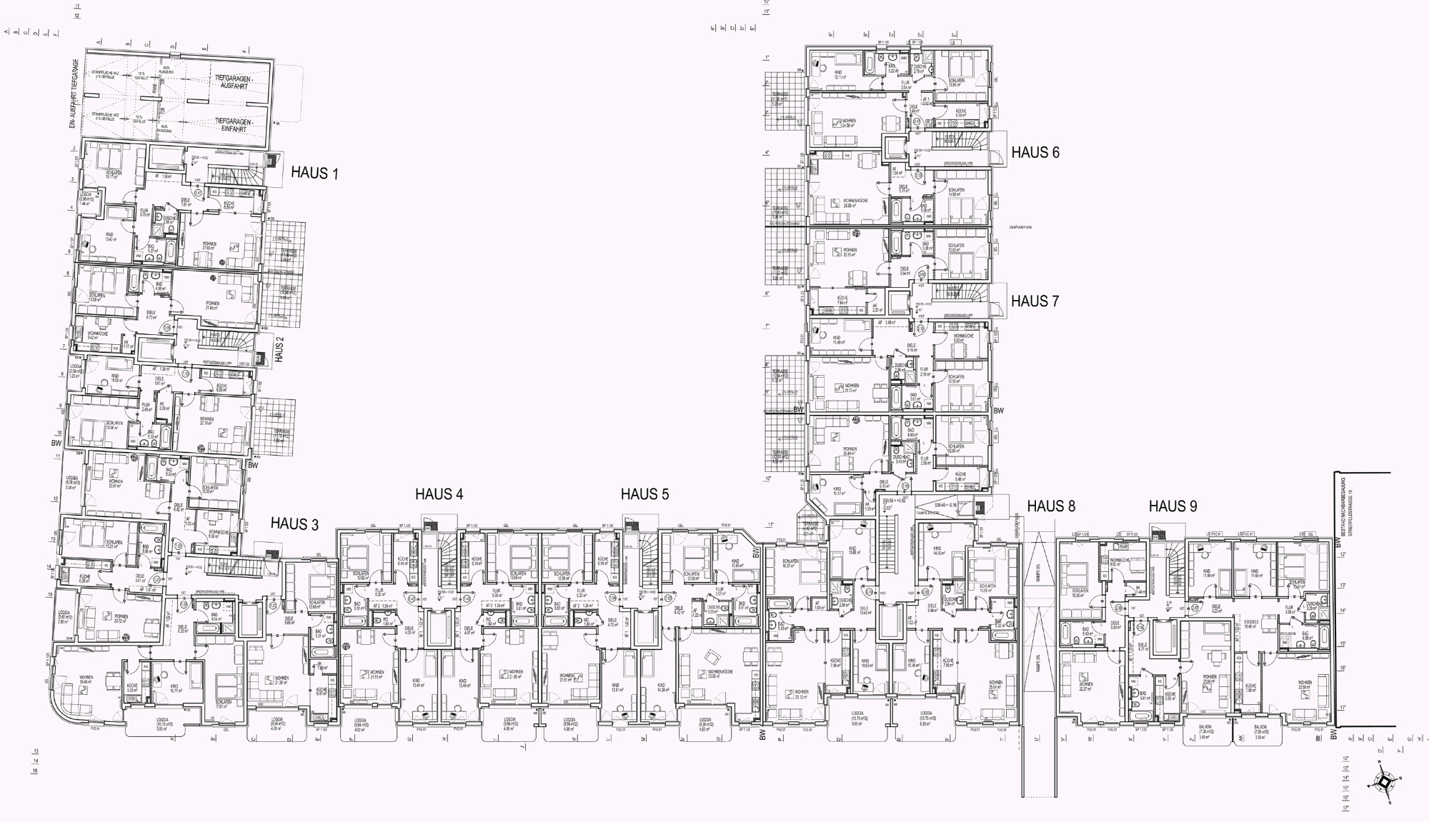
Grundriss Erdgeschoß
Visualisierung von Herrn Peschkes auf Grundlage meines 3D Modells
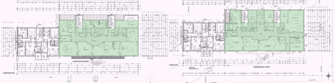
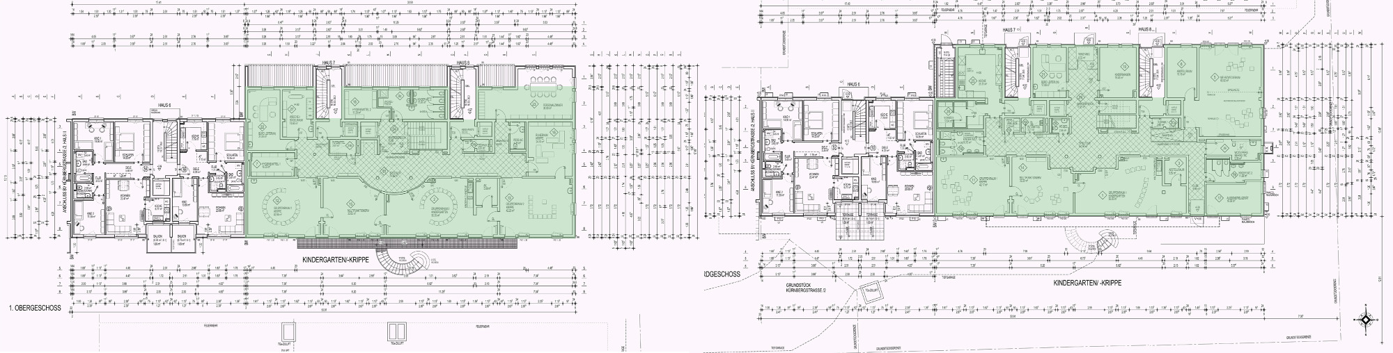
Kürnbergstraße mit integriertem Kindergarten
Grundrisse Erdgeschoß und 1.Obergeschoß
Isometrie KiTa - Erdgeschoß
Isometrie KiTa - Obergeschoß
Occamstraße 14 - Exklusives Mehrfamilienhaus
Ansichten aus Eingabeplan
Aussenanlagen
Impressionen
Doppelhäuser in Eching a. Ammersee
Ansichten/Schnitte aus d. Eingabeplan
Aufnahmen von Juni 2021
Potsdam Galilei/Wildeberstraße
Diese Anlage mit mehr als 200 Wohnungen habe ich im Jahr 1994 entworfen. Sie war mein Einstieg. Die Anlage ist mittlerweile eingewachsen und ist gut erhalten und gepflegt.




Skizze zum städtebaulichen Konzept
Luftaufnahme aus Google Earth
Impression des heutigen Zustands
Skizze der Ansichten Haus 9, 10 und 11
Fertiger Zustand
Impressionen

































